
This coverage is from the Northern Sentinel and can be found here.
Kitimat is moving ahead with a plan to create a year-round downtown market that aims to become both an economic engine and a community hub. Council has approved the project’s final feasibility report and agreed to form a steering committee to begin implementation.
The committee will include representatives from the District, the Kitimat Chamber of Commerce, and the Haisla Nation, and will oversee early planning, timelines, and funding strategies.
Consultant Darren Stott of Greenchain Consulting said public engagement showed strong interest from residents and local groups. “Those engagement findings really demonstrated there was a strong support from both residents and stakeholders for the creation of a downtown market.” He said the market should be more than functional. “It should be one of top three attractions in town.”
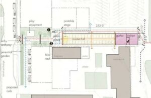
The project will be built in two phases. Phase 1 includes a 6,750-square-foot enclosed pavilion to host up to 30 vendors year-round. The building will feature roll-up garage-style doors, space heaters, lighting and power, and a flexible layout for seasonal events and different market setups. Temporary washrooms will be provided. Adjacent green space will offer room for picnics, informal gatherings, and small outdoor activities.
Phase 2 would expand the facility to over 9,000 square feet by adding a commercial kitchen, heated community hall, permanent washrooms, and storage. These upgrades are expected to increase the facility’s versatility and income potential. The market site—on a green space east of Wakashan Avenue, just north of Two Peaks Brewing—was selected for its central location and strong public support during consultation. Design elements were shaped by accessibility and vendor priorities, including wide paths, weather protection, and food truck stalls adjacent to the pavilion.
The site will also include a children’s play area, picnic tables, and utility hookups for vendors and events.
Cultural and artistic features developed with the Haisla Nation are also envisioned. Mactavish said one of the most consistent requests came from vendors seeking better infrastructure. “We heard this really loudly from vendors, so we’ve given a lot of attention to the loading and unloading for a successful market.”
With this expanded functionality, the project comes with a significant capital cost. The total build is estimated at $5.2 million—$3.5 million for Phase 1 and $1.7 million for Phase 2.
David Van Seters of Sustainability Ventures said the facility is not intended to be highly profitable but should cover its costs over time. “This facility is not a big money maker. The idea is for it to be self-funding, so the revenues will be modest.”


